芬兰:Saunalahti学校
来源:匿名网友投稿 2013-09-02
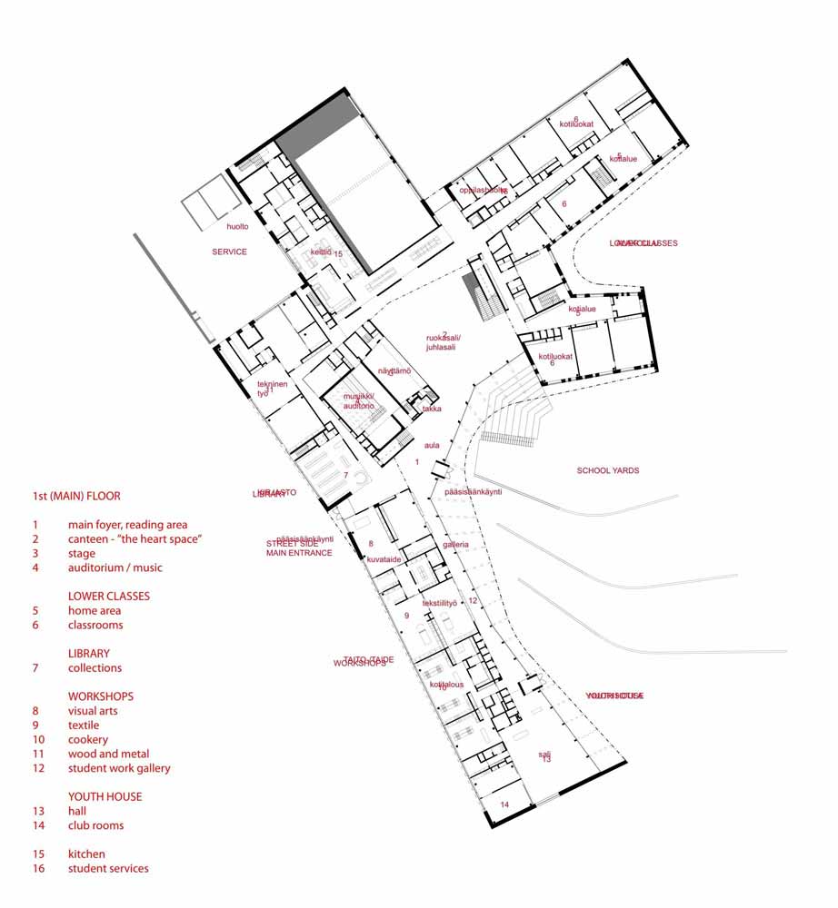
未来学校的教育活动将越来越多地发生在教室以外区域,并引入新的学习模式。Saunalahti学校建筑契合了这种前瞻性的学校教学理念。在实际操作中,学校特别注重开发学习、艺术和体育教育新途径。建设设计支持了这些理念,创造利于各种尺度和气氛相互作用的空间。
针对室内外墙面材料,建设尺度依照功能和儿童年龄不同,进行了不同的设计。新校舍形状适应了地形特点。起伏屋面为学校操场提供了最佳太阳光照条件。从中央广场到相邻公寓楼,铜屋顶形成建筑的第五立面。
广阔中央区域中具有醒目的自由形式天花板,与屋顶形式相呼应。现浇混凝土墙面支撑胶合板横梁。建筑采用了高效节能解决方案,如高效热量回收通风、高效控制照明和太阳能发电装置。
建筑设计:VERSTAS Architects
建筑地点:芬兰Espoo
建筑面积:10,500 sqm
建筑年代:2012
发表评论
最新评论
投稿