希腊:盒子形状的住宅
来源:匿名网友投稿 2012-05-06
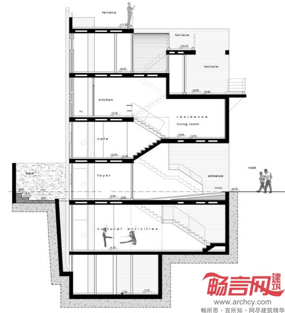
在希腊雅典的Filopappos小山脚下,有一片老街区,这里有一座盒子形状的房子。由于建在两座老房子之间的夹缝中,其占地面积比较狭小。房子正面临街,北面还有一个小院子。
房子内部包括起居室、厨房、卧室和家庭办公区域等,房子的底层还有一个文化活动区,可以用来进行表演和举办展览;房子顶部是一个分为3个层级的屋顶花园。
房子的盒子形状布局是对“原生态的宜居盒子”这一现代设计概念的应用,此概念来自希腊建筑师Aris Konstantinidis。
从底层空间一直到屋顶的绿植花园,房子的各个区域都是像盒子一样按照螺旋结构错层叠加起来的,每叠加一层就上升1.5米的高度。
尽管内部空间比较封闭,但是房子临街的一面在视觉和空间布局上都具备一定的开放性,将房子的私密空间与街道公共区域联系起来。
房子的外墙面没有涂刷颜色,也没有覆盖其他装饰,完全保留了其混凝土原貌。
房子还融入了绿色环保元素:
1.螺旋式错层空间提供了天然的室内采光和通风条件;
2.房子正面大面积地覆盖了木板,这样就可以阻挡阳光直射产生的热量,减少空调的使用;
3.室外区域种植了很多绿色植物,屋顶还种植了青草和小型树木(如橄榄树和石榴树等),打造出了一个绿色屋顶。







设计师:Sofia Tsiraki
位置:希腊雅典
建筑面积:250平方米
建成年代:2011年
发表评论
最新评论
投稿
