澳大利亚:Gilbert住宅
来源:匿名网友投稿 2015-08-17
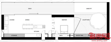
雕塑家Benjamin Gilbert同Archier工作室合作设计了其私人住宅。住宅在此前的金矿和锯木厂上改建而成,利用回收的混凝土材料和大果栎木材。项目位于澳洲Yackandandah,位置介于堪培拉和墨尔本之间。这座一层建筑前身是锯木厂,7年前,雕塑家将其改造成工作室,此次进行了翻新改造。








本站申明:网友阅读本站内容,视为认同本站协议,协议详情请点击查看
标签:建筑设计住宅澳大利亚
发表评论
最新评论
投稿
