伊朗:Danial公寓
来源:匿名网友投稿 2012-10-26

Danial公寓位于德黑兰市东北部城区。公园所在区域有许多夏季别墅和花园景观,随着城市的发展,花园和绿化景观渐渐被新楼房取代。项目设计师的想法是恢复失落的自然属性,让居民重新拥抱自然。

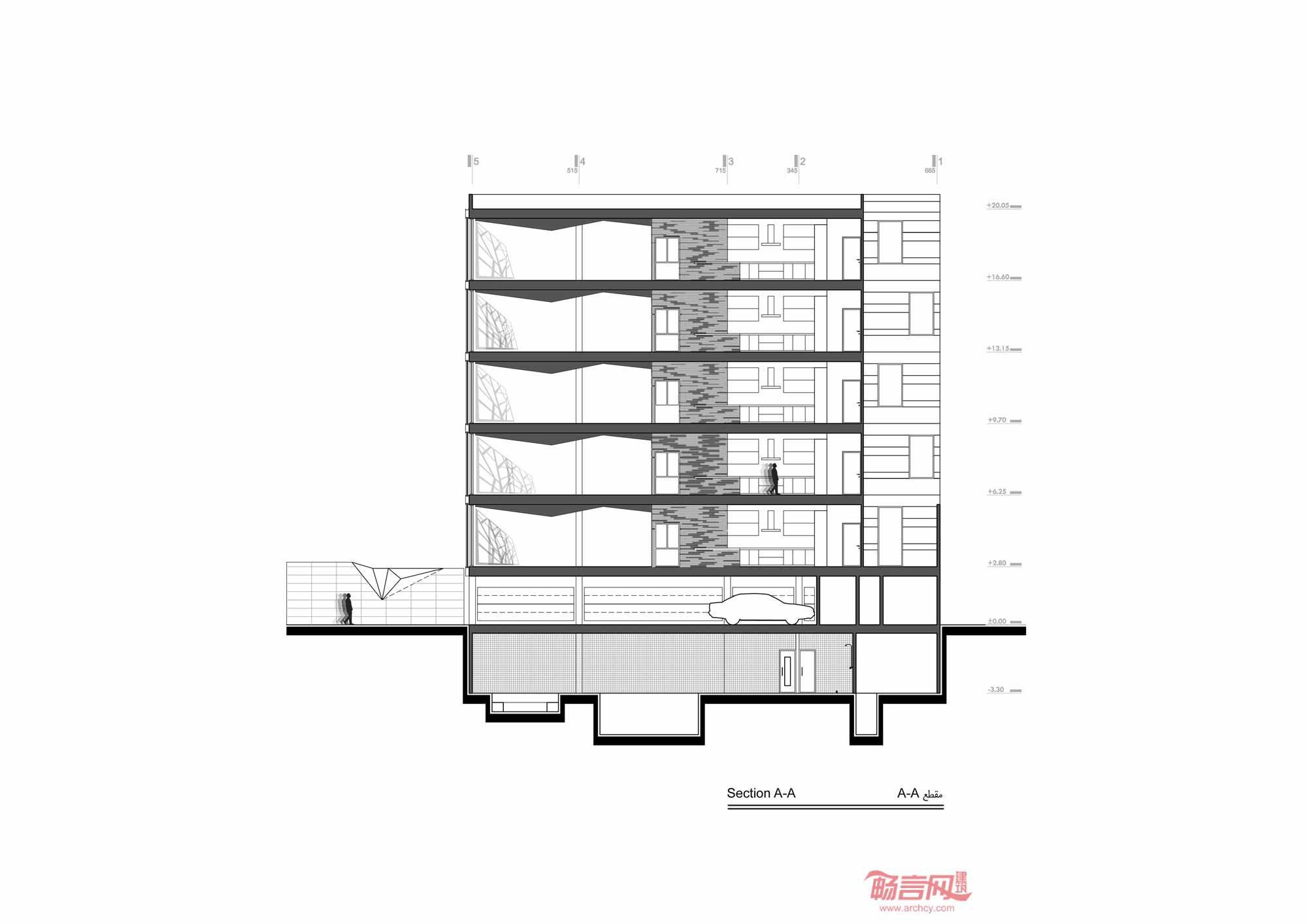
公寓外立面由20块树状板材构成,每层立面覆盖了4块板材,板材安装在两条轨道,人们可以从屋内将板材横向推动,创造出无限多的造型。

立面形状多种多样,配以太阳光线角度,制造了奇妙的室内效果,光线和阴影仿佛跳起了一曲无声的舞蹈。设计师运用阴影概念设计了天花板和墙面。在立面板材下方是大扇玻璃窗,使建筑和城市连接更为紧密。

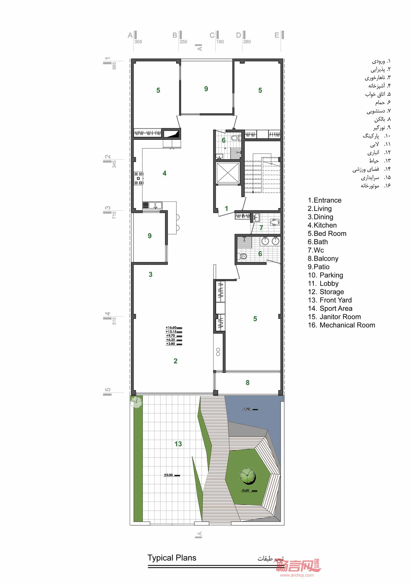
公寓位于一块320平米的长方形场地上。项目规划是建筑面积1344平米的7层建筑,其中包括5套165平米的公寓住宅。停车库和主入口区位于建筑一层,休闲设施(室内游泳池、桑拿房)位于建筑地下层。
发表评论
最新评论
投稿


