爱沙尼亚:Tartu市新幼儿园
来源:匿名网友投稿 2013-04-01
爱沙尼亚Tartu市制定了实施高品质现代公共建筑的目标。得益于该政策,在城市较为破败地区,新建了一所幼儿园。
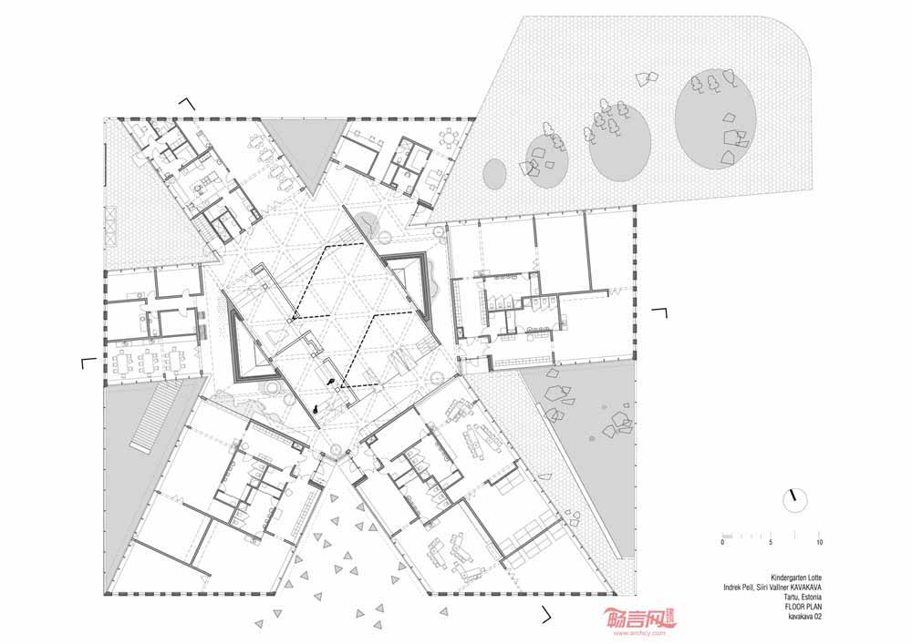
幼儿园布局呈现出六角星形状,设计师希望避免狭长走廊,并营造有序的户外院墙和街道空间。建筑位于场地一角,南侧预留出用于儿童玩耍的区域。
街道一侧的低层建筑外观具有向内属性。混凝土墙面带有小块彩色玻璃窗以及与建筑高度持平的竹子栅栏,在幼儿园和外界之间竖立了一道屏障。
环绕中央大厅的走廊形成了供儿童使用的双倍空间。大厅大约比一层低一米,形成楼梯结构,和游憩走廊一道,组成了独立的开放空间。建筑的六个“花瓣”包含了教室、厨房、餐厅、行政办公室。星形结构使室内区域采光非常充足。
建造系统和材料:中心部分采用就地灌筑混凝土。建筑蓄热量相当大,设计最大程度降低春季和初夏季节降温的需求。建筑的力学设计和自然通风得到了结合。所有房间都有充足日照。儿童教室朝南,面向露天游玩区域。预制混凝土用于包含三角窗户的墙面,由于三角形玻璃窗直接塞入混凝土墙面,工程的精确度很高。
发表评论
最新评论
投稿