美国洛杉矶山巅之居 | Saota
来源:匿名网友投稿 2024-03-18
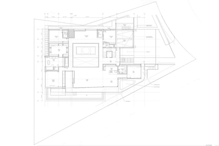
Blue Jay Way住宅位于美国洛杉矶Bird Streets,毗邻比佛利山庄住宅区。场地坐拥山脉高处绝佳位置,俯瞰洛杉矶和好莱坞天际线。项目开阔的平面设计追求室内与城市全景视野的视觉与体验上连接,错落有致的中庭和温暖的白色材质让光影投射到建筑的每一个角落。
这座极简住宅坐拥山脉宝贵的南面的大片平地,宛如白色羽毛轻盈地落于陡峭的山坡之巅,一览无余地俯瞰着城市天际线。设计师用利用线性墙壁勾勒出一系列居住和生活空间,形成开阔明亮的空间布局。项目利用大面积的落地窗纵览东,南,西三面城市天际线,使得在家中的每个角落都可以将城市一览无余。线性墙壁不但提供了开阔的空间布局,也将视线引导至无垠的远方。
.jpg)
.jpg)
.jpg)
.jpg)
.jpg)
.jpg)
.jpg)
.jpg)
.jpg)
.jpg)
.jpg)
发表评论
最新评论
投稿