爱尔兰:Kildare议会楼
来源:匿名网友投稿 2012-07-02
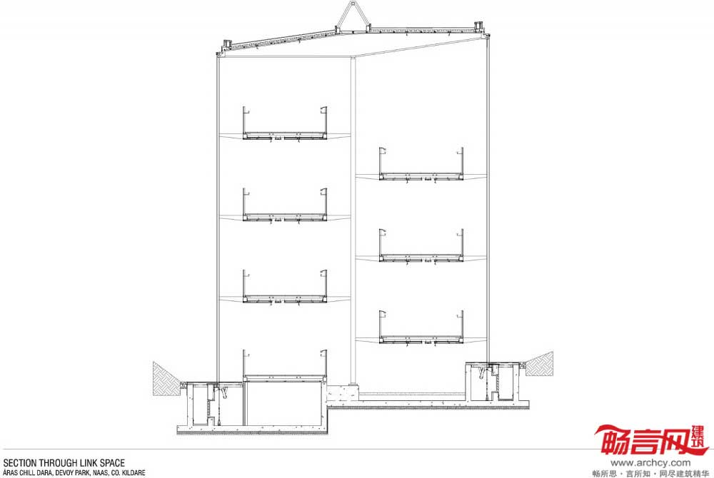
Aras Chill Dara是爱尔兰Kildare的行政中心。议会希望更全面地服务于公众,并将大楼和公园供公众使用。
项目位于城市公园周围。公园由街道到大楼入口处缓慢地倾斜。入口倾斜的表面使人们从街道上能够看到公园,并从反方向提供了望向街道的视角。

两排栅栏构成了大楼的边界,并延伸了城市公园。大楼和公园不再单独存在,而是相互融合,共同构成了一个室外空间。连接栅栏的斜坡是个过渡区域,仅设有松散的环境控制手段,使往公园方向的视线不被遮挡。斜坡还充当了大楼主要的流通空间,以及清晰的指引路线作用。
爱尔兰:Kildare议会楼
建筑设计:Heneghan Peng architects + Arthur Gibney & Partners
地点:爱尔兰Naas, Co. Kildare
面积:11400平方米




发表评论
最新评论
投稿
