巴西:MM别墅
来源:匿名网友投稿 2012-12-26

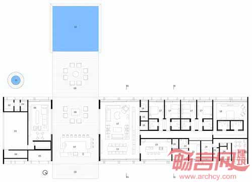
巴西MK27工作室完成了最新项目——位于圣保罗的MM别墅设计。东西轴线上是一个加强混凝土结构建筑,绿色屋顶使房屋融入到翠绿山峰景致中。从车库到入口再到另一侧的主套房,所有空间呈“一”字型排开。建筑外围使用一整排长方形窄木条覆盖,配合大扇玻璃墙壁,使直接采光变得柔和,同时也使室内空间变得开敞通透。

所有私密的卧室都位于东立面,面对美丽的峡谷,对面是管家卧室和社交区域,之间由一条长长的过道隔开。坚实建筑体与长形木质露台结合之处,空间的室内外属性变得模糊,那里兼带烧烤、酒吧和休息功能。公共起居室和电视休闲房位于露台两侧。






发表评论
最新评论
投稿