法国纳博讷古罗马文物博物馆 | 福斯特事务所
来源:网友jclarke87投稿 2022-02-09
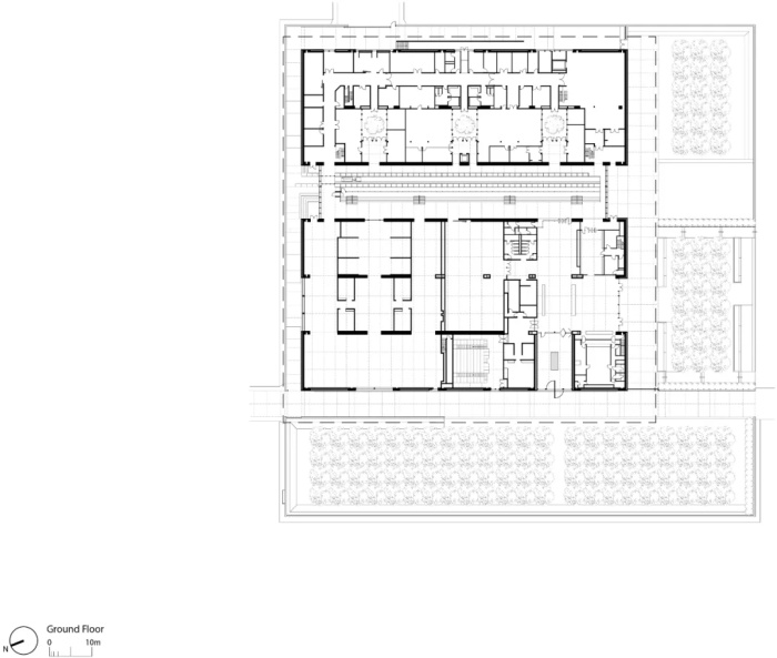
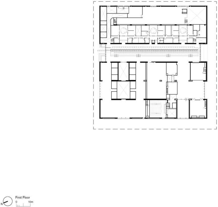
项目带有一种冷静克制的氛围感,是城市入口处纪念碑式的建筑。该建筑室内包括永久性和临时展览的画廊、多媒体教育中心、礼堂、餐厅和书店,以及用于研究、修复和储藏的空间。外部设有花园和露天剧场,用于户外表演。
景观加强了建筑与附近运河的联系,创造出一个宁静的自然环境。受经典法式花园和罗马庭院的启发,博物馆室外设有露天圆形剧场,为户外活动提供场所。设计还希望打造一个友好的、园林式的入口,通过一条新的入口坡道将博物馆与Robine运河的河边纤道联系起来,缩短建筑与市中心的距离。
可持续环境策略是设计重要的一部分。受罗马技术的启发,建筑中的大多数服务设施都设置在地下空间。冷空气被低速低空送出,在保持环境舒适的同时,减少了需要调节的空气量。高层高形成的巨大的空间体量,形成了热飞轮效应,自然地推动着热空气向上流动,并最终排出。
发表评论
最新评论
投稿



