越南:SRDP-IWMC办公楼
来源:网友荒漠星空投稿 2015-01-09
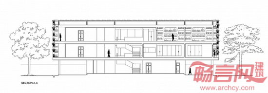
SRDP-IWMC办公楼位于越南Ha Tinh市,由H&P建筑事务所设计。项目面积1307平米,工程造价50万美元。项目所在道路设有多个政府办公楼,建筑成为国际农业发展基金办公总部。由于预算限制,项目使用了原有设施的办公家具。项目考虑因素包括越南当地气候变化情况以及快速城镇化对农村地区的影响。项目理念综合了定耕以及定居,旨在达成三个目标:标志性外观、低成本和快速施工。
本站申明:网友阅读本站内容,视为认同本站协议,协议详情请点击查看
标签:建筑设计办公建筑越南SRDP-IWMC
发表评论
最新评论
投稿