爱沙尼亚:AHHAA科学中心
来源:网友火生土克水投稿 2013-05-23
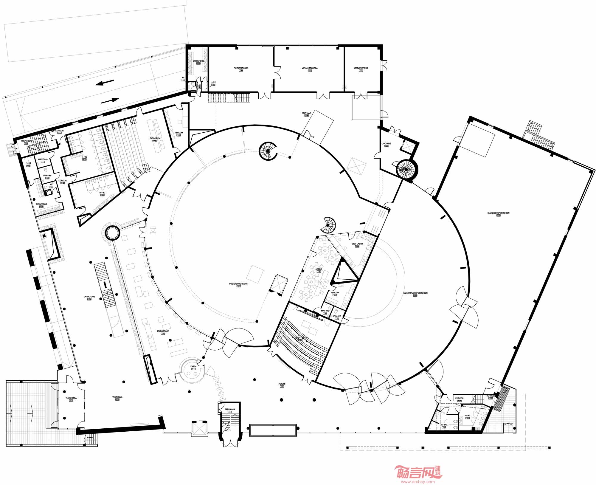
位于Tartu科学中心与此前建成的蜗牛大楼(Tigutorn)结为整体。蜗牛大楼的设计理念是一个巨大的螺旋结构,科学中心呈现拉长椭圆结构,这种神圣几何学隐藏在设计主图之中。科学中心成为螺旋高楼的底座。圆顶、半圆顶、球体和立方体形成构成主义格局,垂直井和水平建筑相互连接。
科学中心包含通用房间及展览厅,同时带有两个礼堂、办公室、商店、餐厅和咖啡厅。球体内部是天文馆。建筑采用的材料包括金属、混凝土和玻璃。建筑圆顶上覆盖电镀铝,球体表面覆盖钛锌锡合金。
本站申明:网友阅读本站内容,视为认同本站协议,协议详情请点击查看
标签:
发表评论
最新评论
投稿