美国:Board博物馆
来源:匿名网友投稿 2015-09-01
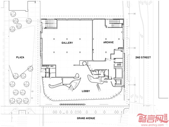
Diller Scofidio + Renfro建筑事务所设计了洛杉矶Board博物馆。项目将于9月对外开放,宣告了洛杉矶新一轮新兴建筑的开启。博物馆占据了Grand大街,这条街上还有同样于本月开放的弗兰克·盖里的沃尔特·迪斯尼音乐厅。博物馆将容纳20万件战后和当代艺术作品,作品来源于Eli and Edythe Board,后者委托扎哈·哈迪德于2012年设计了密歇根美术馆。







本站申明:网友阅读本站内容,视为认同本站协议,协议详情请点击查看
标签:建筑设计美国博物馆Board
发表评论
最新评论
投稿
