挪威:Sogn & Fjordane博物馆
来源:网友安迪投稿 2012-09-18

挪威小镇Forde位于群山峻岭之间,同时毗邻欧洲大陆最大的冰川Jostedalsbreen。

Forde镇新博物馆——Sogn & Fjordane博物馆具有独特的景观和建筑造型,外形如同从周围高山滑落的一块晶莹的冰块。

建筑晶体结构提供了一个不对称平面图,外立面具有不同的位移处理。建筑外立面覆盖了一层玻璃,同时有斜线网格结构,令人联想起冰块的断面线条,同时网格也框定了不规则的窗户轮廓。夜间,网格线会被照明灯点亮,因而博物馆会在寂寂黑夜中的小镇中熠熠发光。

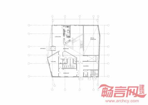
在建筑内部,游客可以在博物馆的四层展区中穿梭。屋顶露台能提供观赏巍峨群山的全景视野,同时也能成为演艺和展览活动的舞台。
建筑设计: C.F. Moller建筑事务所
项目年代:2012
项目面积:3000 sqm



发表评论
最新评论
投稿

