澳大利亚:Boustred别墅
来源:网友羊毛投稿 2012-09-27

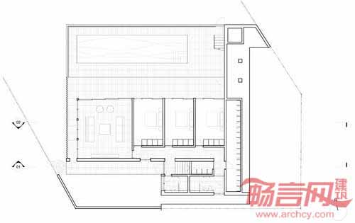
Boustred别墅由Ian moore建筑事务所设计,坐落在澳大利亚Mosman一处面北的悬崖上,较高的地势使人能在住宅俯瞰悉尼港。要想来到住宅的前门,必须先从街道上的人行天桥到二层。进入住宅内部后,住户会看到一个连通三个楼层的楼梯。长条形天窗结构将建筑分成两个部分,北侧包括生活区、卧室,而浴室、书房和服务区安排在南面围护型的区域内。

建筑后立面具有叠放的悬臂屋顶,西立面通过一排垂直杆支撑屋顶,跨越了从一层平台到二层阳台的距离。水泥外立面配合了浅棕色铝合金窗户、玻璃移门和遮阳百叶窗。入口和石灰华地面使用的材质使室内的装饰风格得到了统一。建筑入围了2012年国际建筑节的别墅类奖项。




发表评论
最新评论
投稿

