法国:Chaponost多媒体图书馆
来源:匿名网友投稿 2013-05-17

图片来源:Nicholas Laisné建筑事务所
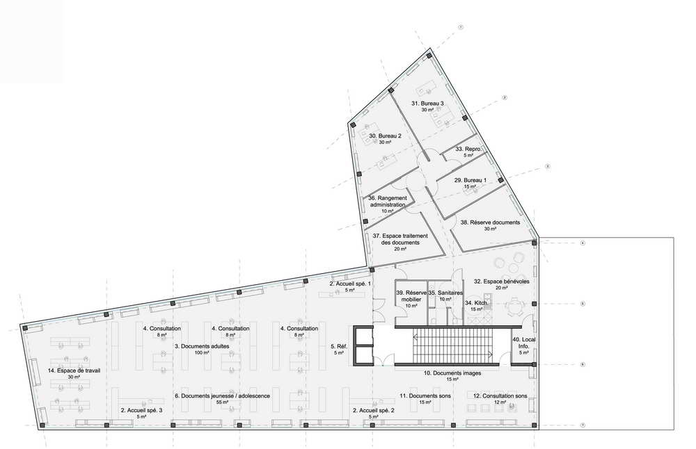
法国Chaponost多媒体图书馆由Nicholas Laisné建筑事务所设计,项目坐落于里昂市郊的Chaponost中心,场地保留了乡野村落的样貌。

图片来源:Nicholas Laisné建筑事务所
建筑呈现L型,与缺失一角的场地相辅相成,俯瞰建筑下方的公园。

图片来源:Nicholas Laisné建筑事务所
多媒体图书馆具有轻型铝材立面,当代外观建筑完美地融入周边环境。图书馆低调别致的外表将读者引入数字世界中。

图片来源:Nicholas Laisné建筑事务所
图片来源:Nicholas Laisné建筑事务所

图片来源:Nicholas Laisné建筑事务所
图片来源:Nicholas Laisné建筑事务所
图片来源:Nicholas Laisné建筑事务所
图片来源:Nicholas Laisné建筑事务所
图片来源:Nicholas Laisné建筑事务所
图片来源:Nicholas Laisné建筑事务所
图片来源:Nicholas Laisné建筑事务所
图片来源:Nicholas Laisné建筑事务所
图片来源:Nicholas Laisné建筑事务所
图片来源:Nicholas Laisné建筑事务所
发表评论
最新评论
投稿









