希腊:麦秸秆搭建的文化中心
来源:网友Cici投稿 2016-06-22
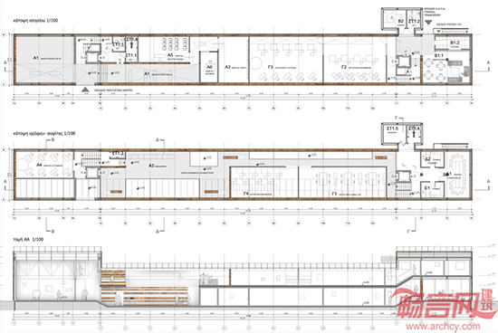
建筑设计公司Georges Batzios在希腊设计了一座新的文化中心。设计中考虑了当地的地理环境和历史元素,形成了这样一座现代化的可持续建筑。
旧的文化中心位于塞萨莉亚平原,是一座19世纪时期的建筑,周围一些零星的小屋也需要修缮。通过结合建筑和农业两个元素,设计师想到了与文化和环境因素恰好相符建筑方案。
根据北欧地区研发出的一种现代建筑技术,建筑师提出用麦秸秆为文化中心搭建外墙。麦秸秆将覆盖整栋建筑,在这座既现代又安全的建筑内,访客们可以在成捆的金色麦秸秆上或坐或躺,甚至吃午餐。







发表评论
最新评论
投稿