美国:John and Frances Angelos法学院
来源:匿名网友投稿 2013-05-13
美国巴尔的摩大学为其法学院设计的一栋新建筑旨在提供现代功能要求,帮助大学为该地区文化、商业和未来发展贡献力量。大学为法学院建筑设计举办了设计竞赛,最终Behnisch建筑事务所获得了竞赛的第一名。
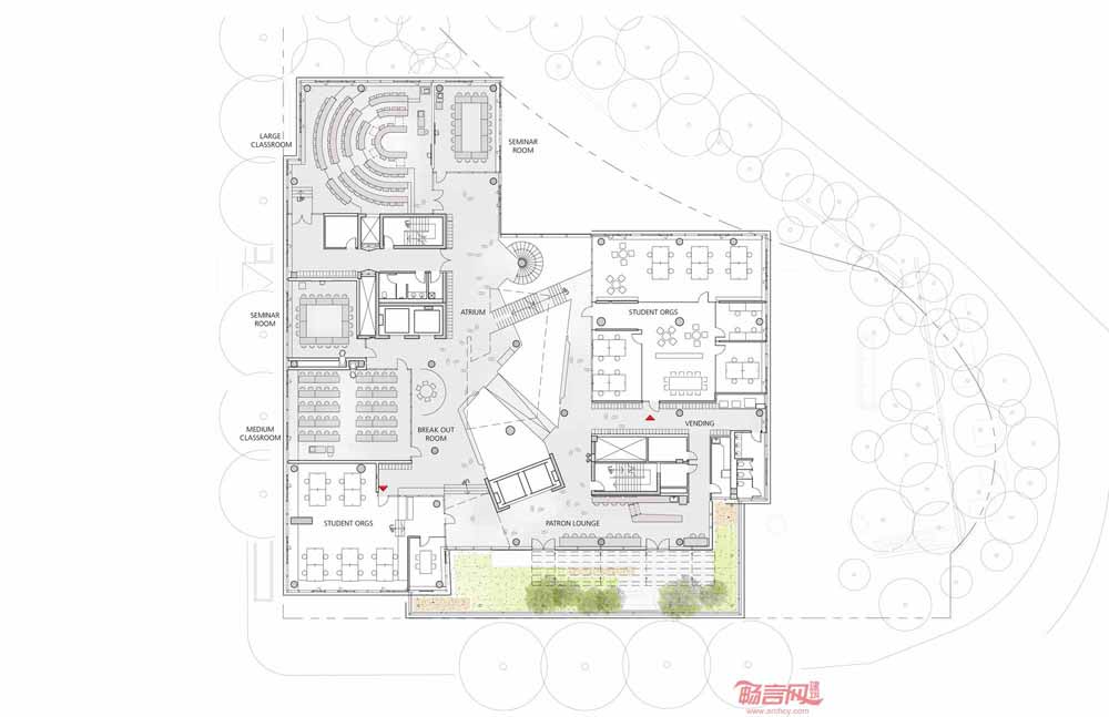
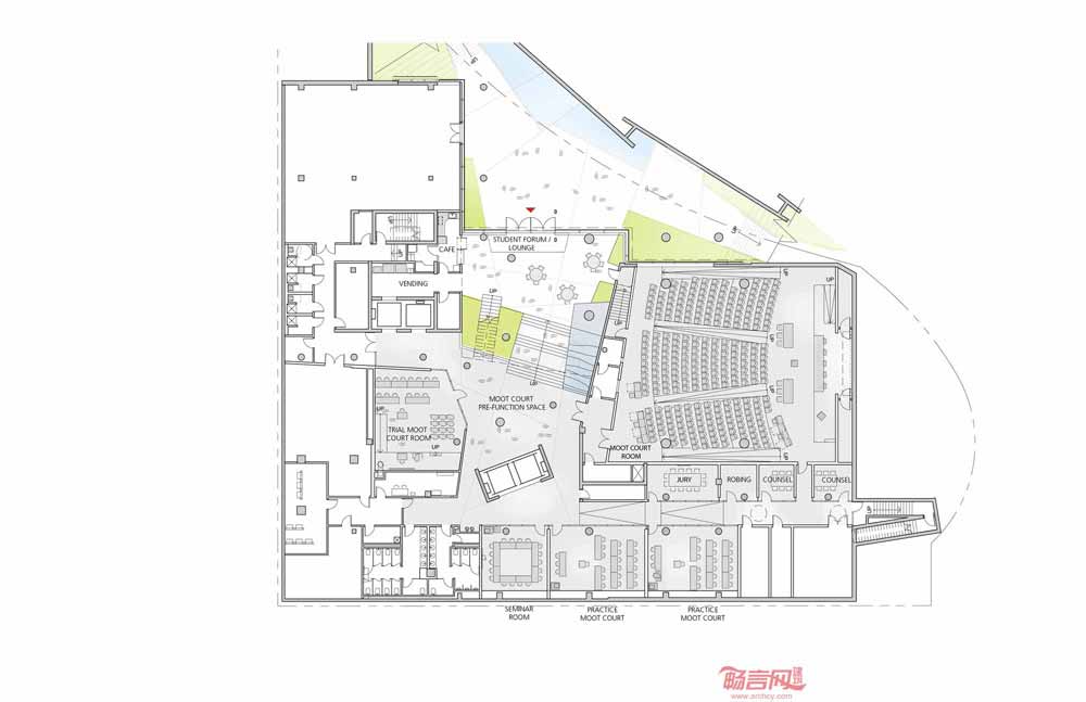
新法学院建筑将首次使教室、教员办公室、行政空间和法学院图书馆位于同一栋建筑内。建筑将位于Mount Royal大道和Charles街的交口,在功能和形式上均使法学院成为学术与社会联系纽带,提供最先进的教学设施,促进学生、教职人员的互动交流。
由于项目场地与巴尔的摩Penn火车站相邻,同时与Jones Falls高速公路毗邻,建筑成为通向校园和市区的醒目门户,展示出大学对于城市复兴和发展的责任感。
法学院是大学追求“降低全球温室排放”和达到气候中性策略的重要举措。法学院在建筑室内区域最大程度利用了自然光;依据功能和使用率对空间进行智能调节;尽可能节约和重复利用水资源;利用弹性高效立面,满足节能要求。
发表评论
最新评论
投稿