以色列:音乐舞蹈学校
来源:网友阿曼达投稿 2016-07-20
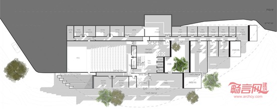
建筑事务所Neuman Hayner和Gal Karni联手在以色列梅瓦塞莱特锡安市设计了一所音乐和舞蹈学校。
项目设计灵感来源于散页乐谱中的五线谱。另外,建筑师也意在打造一个开放而又通风的空间,于是按照五线谱上音符跳跃的形式设计了现在的多样化结构,学校还可以根据未来不同的需求做出调整。
此外,各个空间的私密性各不相同,因此可用于开展各种公共活动和私密活动,提升了建筑的综合用途。










本站申明:网友阅读本站内容,视为认同本站协议,协议详情请点击查看
标签:以色列舞蹈学校
发表评论
最新评论
投稿



