瑞典:斯德哥尔摩Woodland公墓
来源:匿名网友投稿 2014-09-24
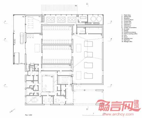
斯德哥尔摩Woodland公墓坐落于一片原始树林中的起伏场地上。建筑外围有一片广阔的百年老松。建筑距离教堂约150米,是一座紧凑的砖砌建筑。该项目设计被概括为“森林中的石头”。
新公墓设计重点在于室内装饰和建筑布局。建筑结构采用清水混凝土,创造出赋有活力、宁静温和的氛围。
混凝土由纯白的丹麦水泥以及白云石晶体制成。脚手架拆除后,工程未对表面做任何处理。
本站申明:网友阅读本站内容,视为认同本站协议,协议详情请点击查看
标签:建筑设计瑞典公墓宗教斯德哥尔摩Woodland
发表评论
最新评论
投稿