美国:Chamisa Village二期工程
来源:匿名网友投稿 2012-10-29

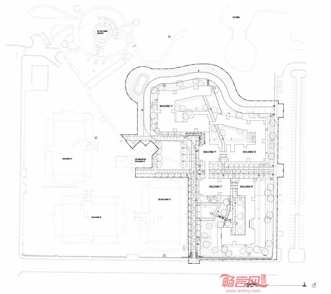
新墨西哥州立大学Chamisa Village二期工程为282名学生和教员提供了2人间和4人间宿舍。项目成为了新的大学校园门户,有助于大学营造独特、齐整庭院以及户外社交空间。

自1993年起,美国绿色建筑委员会一直致力于推动具有环境责任感的健康工作环境的设计、施工和运行。如今,绿色建筑以及可持续性设计理念已经成为建筑行业的基本课题。

前新墨西哥州州长Bill Richardson同样认同绿色建筑概念,与2006年签署了一项执行法规,要求未来本州所有超过15000平米的大型项目必须达到LEED银质认证标准。Chamisa Village二期工程项目超越了此标准,达到了金质认证标准。

项目具有雨水收集系统,可以收集建筑屋顶的雨水,继而排放到蓄水池中,成为灌溉用水。

建筑白色屋顶具有反射性,能够减少热辐射,有利于建筑节能。
建筑全部采用了低辐射玻璃,R19墙面保温系统,R30屋顶保温系统,高效节能照明系统能够大大降低用电消耗。
发表评论
最新评论
投稿
