捷克:Red Hill Rise混合用途建筑
来源:匿名网友投稿 2013-09-12
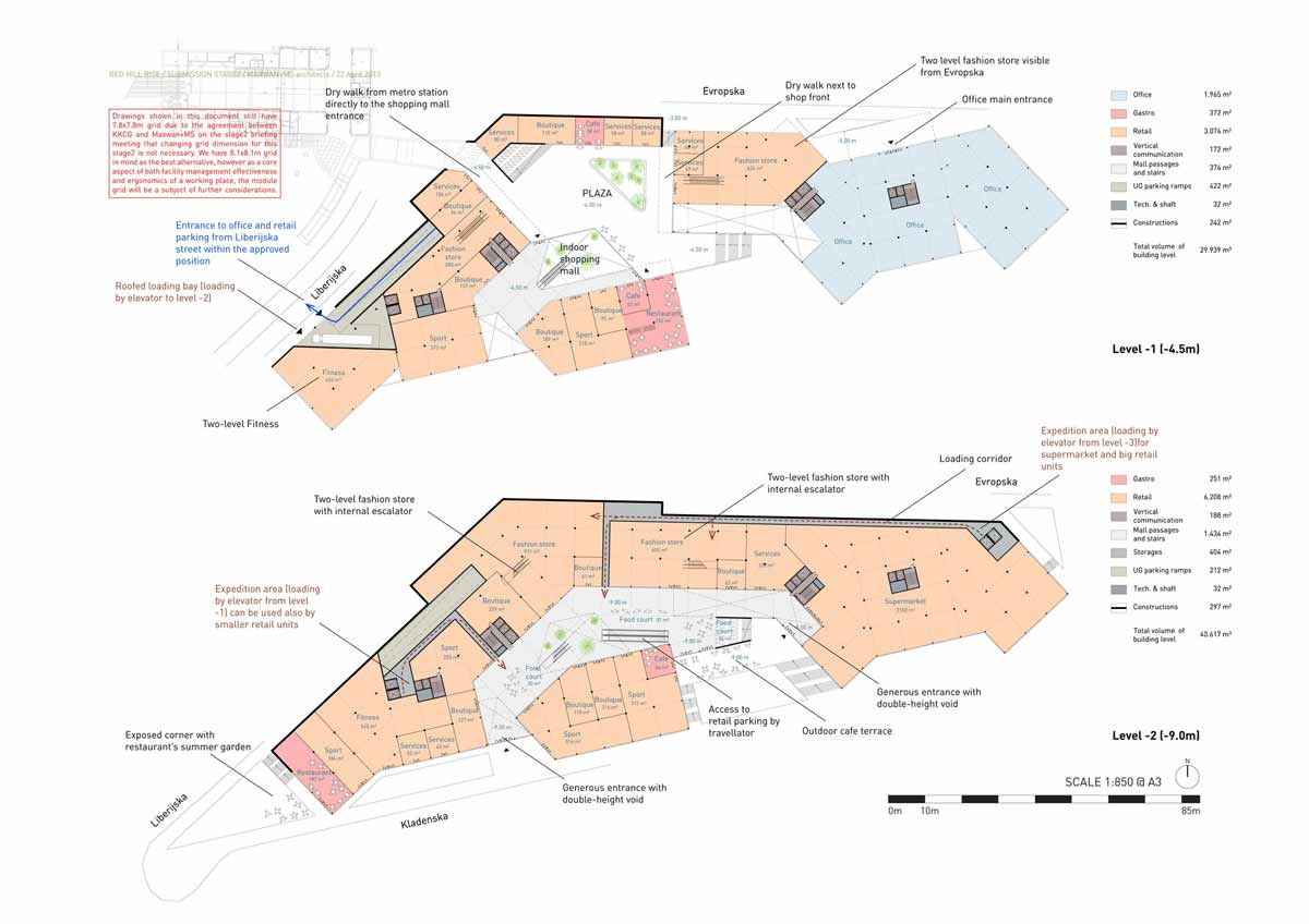
Maxwan设计公司与MS建筑事务所合作,共同完成了捷克布拉格Red Hill Rise混合用途住宅楼。项目位于地铁站上方,包括写字楼及商铺,项目一侧是连接机场和历史文化名城布拉格市中心的主干道。设计方案“打破”了建筑体量,插入景观和公共空间。项目的背景是一个陡坡(最大高差14米),坐落在安静的住宅区,该地区存在商业需求,并希望出现具有表现力的建筑项目。同时,区域内的公共空间数量明显不足。
设计方案的“打破”理念不仅对于宁静的环境作出敏感回应,还避免大规模的建筑体量,致力于打造具有商业竞争力的办公空间,实现震撼突出形式的建筑。
占地面积:1.2公顷
总建筑面积:4.1万平方米
面积类型:服务及零售250sqm、办公空间2.88万平米、停车场700个车位
预算成本:5500万欧元
建筑年代:2013年
发表评论
最新评论
投稿