德国Bauhofstrasse酒店 | VON M
来源:网友Cici投稿 2021-01-18
这家酒店位于德国路德维希堡,名为「Bauhofstrasse Hotel」,仅仅用了 5 个工作日就建成。酒店由 Matthias Siegert 与 Dennis Alexander Mueller 二人共同创立的德国设计事务所 VON M 设计,位于一个历史建筑街区,它的总建筑面积为 2058㎡;并且高度与相邻建筑一样,共有四层楼,屋顶也采用了相呼应的结构,这让它能很好地融入整个街区的环境 。
外立面采用的是白色的水泥纤维板材料,让整个建筑的外立面简洁,另外在表皮也能看到独特的纹理特征 。从酒店的大堂、餐厅、一直到客房,都是采用了木材,饰面也保留了木结构固有的肌理特征。
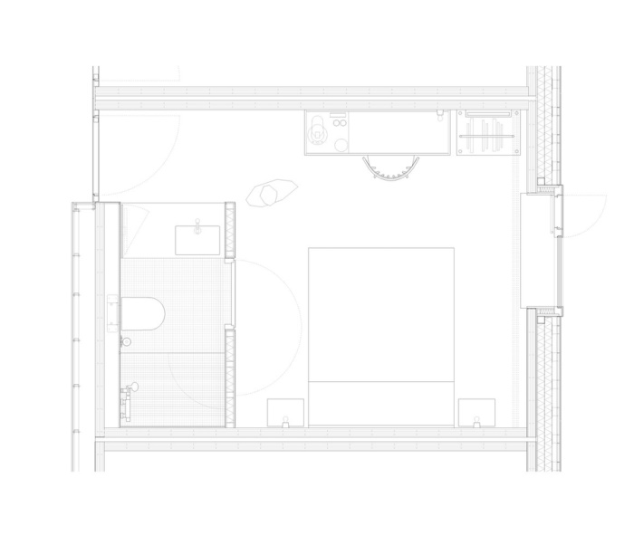
建造中,因为使用混凝土材料而造成的二氧化碳排放量共 880 吨,但都被所使用的 440 立方米木材节省的排放量给替代了,成为一个「碳中和」的建筑。酒店内共有 55 间客房,都采用了中性色调的装饰,并配有米色和白色的窗帘以及灰色地毯。
.jpg)
.jpg)
.jpg)
.jpg)
发表评论
最新评论
投稿


