奥地利:Graz科技大学儿童日托中心
来源:匿名网友投稿 2013-10-25
项目包含了紧凑、严密的几何结构建筑物。建筑布局延续了现有校园特点,产生了新增的室外空间、广场、道路,以及一系列视觉连接。科技大学的象征性入口是一座七层方形建筑和背后的四层建筑。在混杂的周边环境中,边长23米的正方体建筑为环境注入了稳定因素。建筑与新公共广场一道成为整个校园的门户边界。
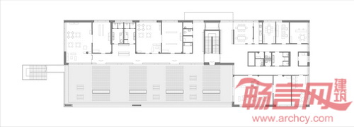
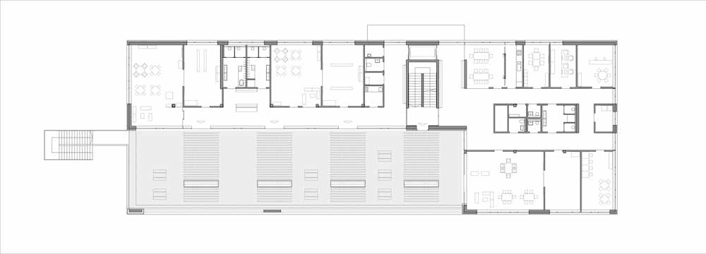
Graz科技大学儿童日托中心是一座二层、东西向的独立建筑。建筑包含面向大学职工的托儿所和幼儿园。托儿所宽阔的窗户保证了室内采光充足。托儿所正前方的露台是宽阔的室外延伸空间。
建筑设计: Hans Mesnaritsch
建筑地点: 奥地利Graz
建筑面积: 29500sqm
建筑年代: 2012
发表评论
最新评论
投稿