澳大利亚:Gibbon Street别墅
来源:网友Jaz53投稿 2012-04-19
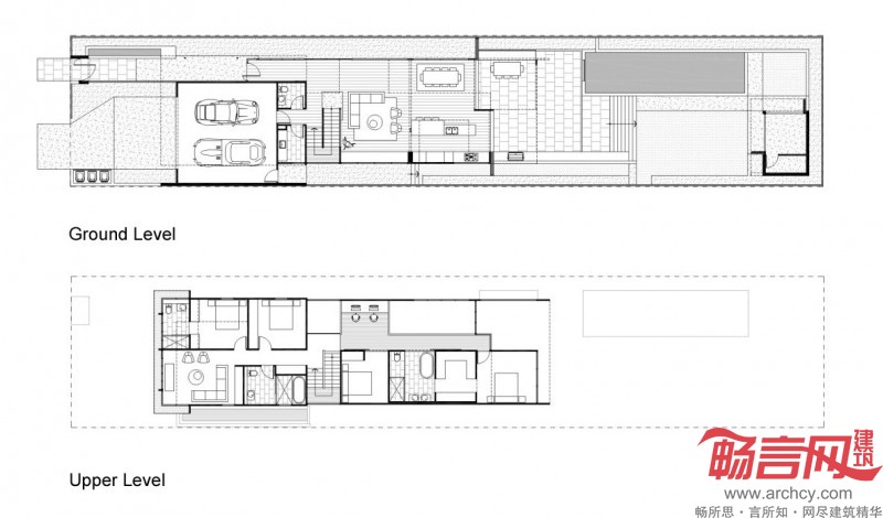
Gibbon Street别墅位于澳大利亚东部的布里斯班市,这栋2层别墅的设计方案来自当地建筑设计公司Shaun Lockyer Architects。

“Gibbon Street别墅实际上是对布里斯班市内的一座小房子进行现代化扩建的成果,原来的小房子是典型的昆士兰村舍风格,”设计师说:“扩建的部分紧挨着原来的房子,尽管设计方案也对原来的房子进行了现代化修饰,但是新旧部分的区别还是比较明显的,不仅颜色使用有反差,而且用料和形态也各不相同。”

整栋别墅共有4间卧室、2个生活区和1个书房。原来的小房子包括卧室、车库和其他功能区域;而新建的部分则包括一个主生活区和一间主卧室,这些区域的天花板都是双层挑高的。光线可以透过北面的窗户照进生活区。

“选用的建材大多是深颜色的,饱含阳刚气息,这样就能给室内营造一种沉稳的氛围。这种深色主题一直从屋内延伸到室外,比如庭院里的石板和抛光混凝土都是深颜色的。庭院是凹陷下去的,仿佛是在地面上雕刻出来的一样。”设计师说。

室外游泳池是被略微抬高的,透过一扇大玻璃窗,首先映入眼帘的就是这个泳池。











发表评论
最新评论
投稿


