印度:碉楼房子
来源:网友Dead_Gorgeous投稿 2012-05-10
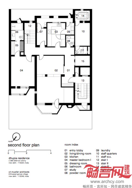
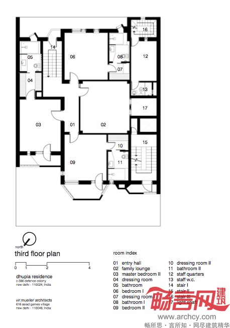
在印度首都新德里,地皮价格正在不断飞涨,迫使土地拥有者们在有限的土地上将房子尽可能地建得足够高。由于私人住宅和公共街道的不断蔓延,这座城市的街景正在迅速衰退;而且,由于住宅区里混凝土结构的建筑泛滥,公共区域和私人住宅区之间的界限也逐渐模糊了。
为了在这样的环境中建造一座充满活力、视觉上更加通透的房子,设计师想到了这样一座碉楼一样的住宅。
碉楼房子在风格上与15世纪的伊斯兰建筑风格类似,主要由红砖建造而成。房子里所有的门窗都是用柚木手工制作的。由于当地属于地震带,该房子采用了抗震设计。
除了厚实的墙壁,房子外表的各个连接处也使用了红砖,赋予这座房子丰富的土陶色彩。阳光透过红砖制成的光栅,在房子正面和室内形成一个个格子状的光斑。





设计单位:Vir.Mueller architects
位置:印度新德里市
总建筑面积:11000平方英尺
建成年代:2011年
发表评论
最新评论
投稿







