丹麦:南方大学学院
来源:网友记忆加温i投稿 2013-11-26
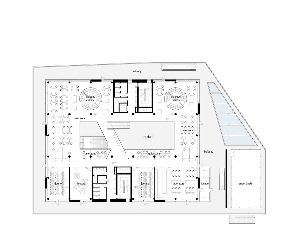
南方大学学院新教育中心设计特点是不设置传统意义上的教室。中心提供了具有视觉吸引力的学习环境,小组学习区、演讲区、对话区和独立学习区满足多种形式学习需求。项目设计灵感来自Haderslev的水岸位置,设计围绕中庭区域,提供360度城市港口全景视野。教育中心露台通过独特的表现形式成为建筑的重要元素。建筑一层到顶层设置了露台,呈现旋转形式,提供兼具室内外特点的空间。
建筑设计:AART Architects, ZENI Architects
建筑地点:丹麦Haderslev
建筑施工: COWI
建筑面积: 8,600 sqm
建筑年代: 2013
发表评论
最新评论
投稿