阿根廷:ME San Telmo酒店
来源:网友半糖投稿 2013-12-03
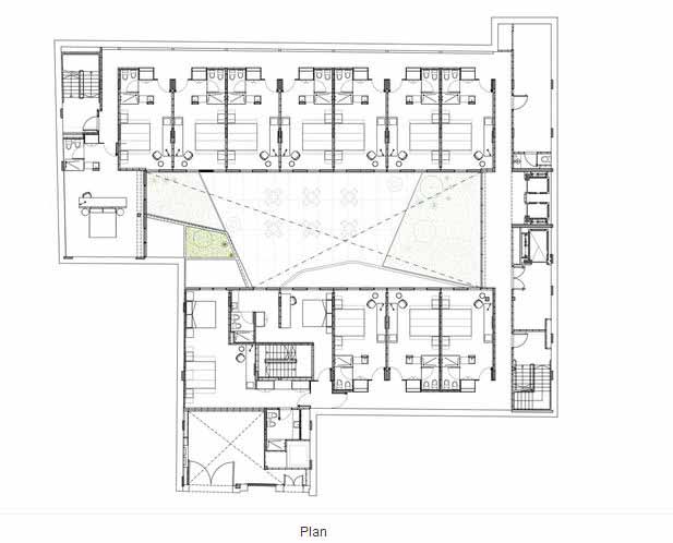
阿根廷布宜诺斯艾利斯ME San Telmo酒店项目旨在达到两个设计目标:首先,通过一层的公共空间和艺术馆达到与Dorrego广场的流畅关系;其次,保留建筑外立面和室内百年历史的四周墙面。项目建筑面积达4500平米,对13米高的现代修道院进行改造,4间玻璃地面的房间朝向中央庭院。内部庭院设置成展示区,附带酒吧、古董店和其他酒店设施。
本站申明:网友阅读本站内容,视为认同本站协议,协议详情请点击查看
标签:建筑酒店阿根廷
发表评论
最新评论
投稿