匈牙利:Csorsz体育中心
来源:网友Jaz53投稿 2012-10-10

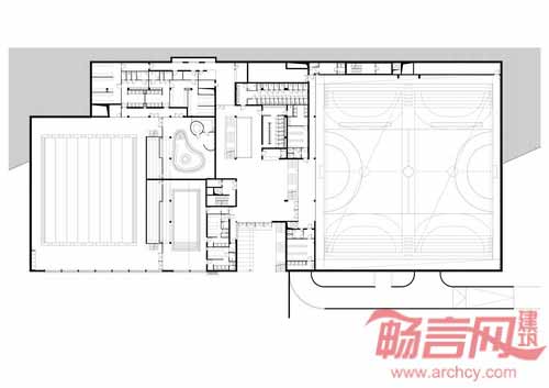
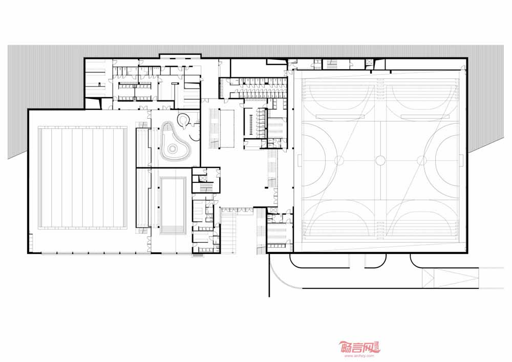
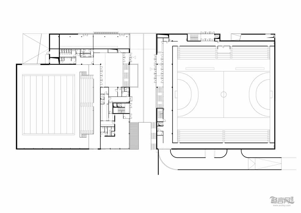
Csorsz体育中心位于匈牙利布达佩斯,拥有方正的平面布局和复杂的多面铜屋顶。

体育中心和街道通过露天广场区连接。体育场南端的泳池面向一个宽阔的花园,花园容纳了若干室外体育场和一个室外泳池。

从体育中心的一层平面图看,体育场的结构非常简单。体育场一层区域由两个相同的方形区组成,其中一个包含了拥有正面看台的体操场,另一个涵盖了呈现“L”型的泳池及附属设施。两个区域相互独立,通过一个公共流通区连接。

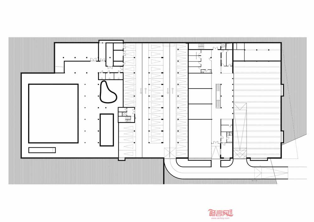
然而,从建筑的屋顶层,方能看出T2.a建筑事务所设计的建筑形状。建筑屋顶由一系列看似随意的多面镶铜板组成,从Csorsz路角度观看,建筑如同一块破碎的贝壳。屋顶的部分铜板连接成连贯的平面,另外一些则变成了垂直的金属块,为下层空间提供了充裕的光照。
发表评论
最新评论
投稿


