巴黎十二号公寓 | MARS Architectes
来源:网友Simeon投稿 2021-05-26
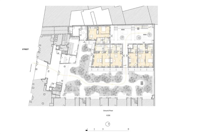
项目位于巴黎十二区,房地产公司GECINA于2020年10月完工,建筑被封闭在街区中心,周围是建于二十世纪70年代的公寓群。建造场地与街道由一座11层的建筑隔开,禁止任何常规的起重装置和任何空中通道。同样作为规定的,在施工期间,现有建筑的大厅必须为居民保持运作。
所有这些限制导致我们只能用尺寸极小的地下室(3.5米宽×2.3米自由高度),穿过连接街道和街区中心的停车场,来进行这一操作。除了通行限制,还有重量限制,因为新建筑必须跨越现有的停车场,却不能妨碍居民使用它。
.jpg)
.jpg)
.jpg)
.jpg)
.jpg)
.jpg)
本站申明:网友阅读本站内容,视为认同本站协议,协议详情请点击查看
标签:法国建筑设计巴黎公寓设计
发表评论
最新评论
投稿



