日本:东京筑地公寓
来源:网友迈阿密热火投稿 2016-11-16
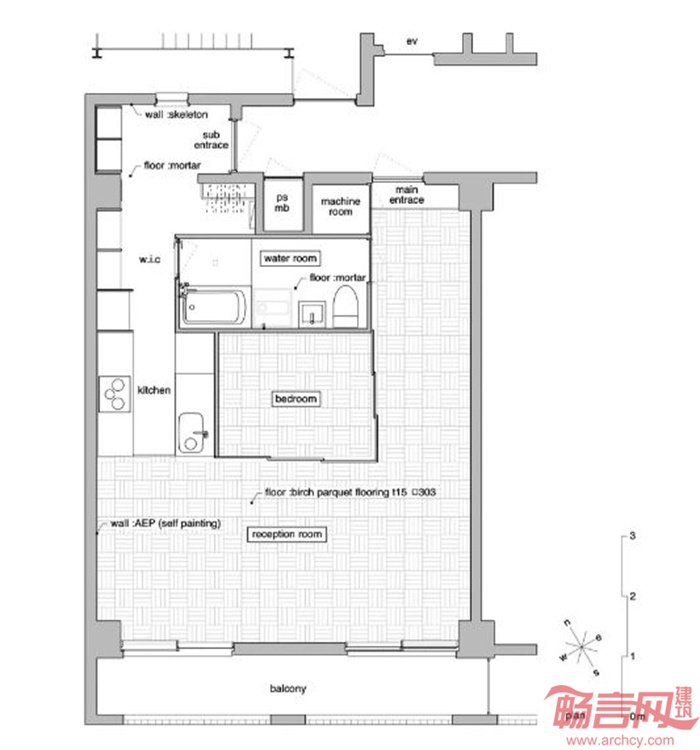
吉田裕一建筑设计事务所设计了东京筑地公寓。项目面积47平米,于2014年完工。原先这套两式公寓将用于办公用途,现在业主将其改造成单人公寓。除了保证基本居住功能,设计师希望增强室外区域的使用可能。此外,设计要考虑到未来五到十年房屋出售或转租的可能性。设计使用了分区的概念,使得项目不仅用于居住,也可用于居家办公或者办公室,这种功能的丰富增加了其商业价值。
本站申明:网友阅读本站内容,视为认同本站协议,协议详情请点击查看
标签:日本室内设计东京筑地公寓
发表评论
最新评论
投稿


