希腊:GBH餐厅
来源:匿名网友投稿 2015-12-11
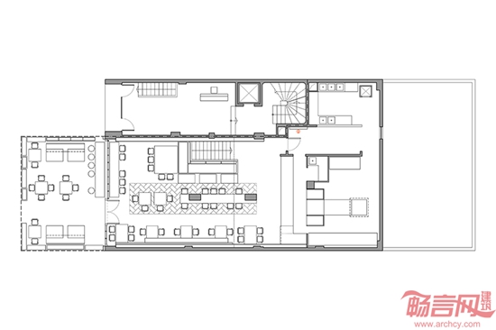
Lantavos公司设计了位于希腊雅典的GBH餐厅。项目面积161平米,于今年完工。该项目是一个改造工程,业主要求在建筑、装饰、视觉元素中融入餐厅品牌希望传达的国际工业风格。新建项目放弃使用夹层,从而使空间更加宽敞明亮。同时,去除了连接一层的楼梯。出于预算考虑,厨房和柜台维持了原先位置。





本站申明:网友阅读本站内容,视为认同本站协议,协议详情请点击查看
标签:室内设计希腊餐厅
发表评论
最新评论
投稿
