法国:巴黎30平米小公寓
来源:匿名网友投稿 2015-04-27
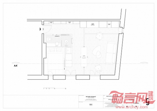
Richard Guilbault设计了位于法国巴黎的30平米小公寓。改造前,空间被隔成四间,为装饰增加了难度。业主是一对年轻夫妇,改造目的是营造明亮、赋有活力的起居室,使卧室的使用性能最大化,并增强储物功能。改造后,起居室从以前1/3面积比例提升至2/3,并通过四扇窗户享受明亮的采光。新卧室空间隐秘舒适,包含宽敞的储物柜。卧室推拉门可以将其与起居室灵活隔开。
本站申明:网友阅读本站内容,视为认同本站协议,协议详情请点击查看
标签:室内设计公寓法国巴黎30平米
发表评论
最新评论
投稿