美国:公寓楼室内改造设计
来源:匿名网友投稿 2012-05-10
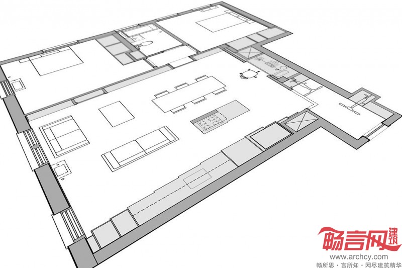
纽约设计工作室Haiko Cornelissen Architecten对当地一套公寓楼进行了室内改装设计。
“为了扩大室内空间,我们将一些平时较少用到的空间都整合到墙壁里面了。”设计师介绍说:“通过将办公区、图书馆和厨房等功能区域压缩到墙壁中,居室空间比原来扩大了1倍。”
由于这些区域的功能不同,压缩整合的方式也多种多样。设计师用一扇滑动门将办公区隔离出来,另外用一扇与天花板相接的门(看上去是上下颠倒的)将媒体中心与起居室隔开。橱柜整体向后挪动,使得厨房在功能齐全的前提下显得更加紧凑(冰箱也被挪到了厨房)。
设计师在浴室里设置了一面抛光铝制墙,将储物间和淋浴间隔开;由于淋浴间正对着一扇窗户,于是设计师将这面铝制墙延伸到了淋浴间和窗户之间,这样既保证了淋浴间的私密性,而且抛光铝板也能将从窗户透进来的光线反射到室内其他区域。
这种“墙内整合”的方式已经成为了当代室内翻新设计的新思路,这样不仅能增加空间利用率,而且在满足各种居住需求方面也呈现了独有的特性。










发表评论
最新评论
投稿

