荷兰:鹿特丹F公寓
来源:匿名网友投稿 2015-07-13
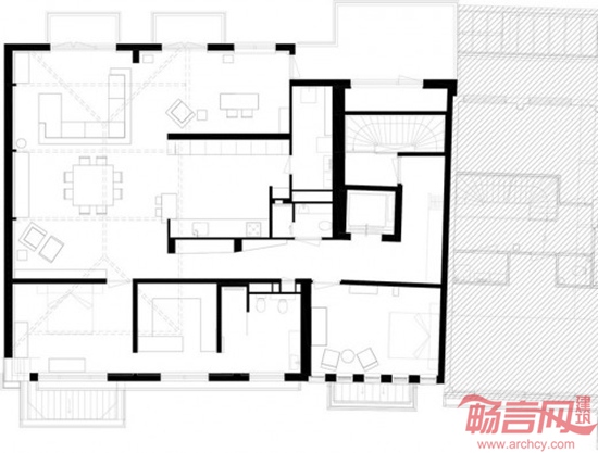
鹿特丹F住宅是由Kralings博物馆改造的一座建筑。这所豪华住宅楼包含三套公寓,共享一个入口和电梯。其中F住宅位于二层,面积193平米,包含25平米的户外空间。室内最大层高为6米。天花和衡量结构是设计的核心成分。楼梯和电梯连通走廊,后者与起居室、主卧、客卧、客卫相通。



本站申明:网友阅读本站内容,视为认同本站协议,协议详情请点击查看
标签:荷兰公寓室内装饰鹿特丹
发表评论
最新评论
投稿
