谢英俊作品展示
来源:匿名网友投稿 2014-10-22

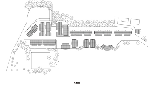
邵族安置社区
9·21大地震(集集大地震)为20世纪末中国台湾伤亡损失最大的天灾,发生时间为1999年9月21日凌晨1时47分12秒,震中在北纬23.87˚、东经120.78˚。位于中国台湾南投县集集镇,震源深度8km,里氏规模达7.3级。此次地震是因车笼埔断层的错动,并在地表造成了长约100公里的破裂带。全岛均感受到严重摇晃。共持续102秒,也被为9·21中国台湾大地震或9·21集集大地震。中国台湾的台中县、南投县为主震中区域,受灾特别严重。地震发生隔日据统计,死亡人数已逾2 000人,伤者6 534人,受困者12 308人。台北县、台北市、苗栗县、台中市、彰化县、云林县等地亦有严重灾情。三周后,台湾当局公布死亡(含失踪)人数为2 378人,死亡人数最多为台中县1 138人,次多为南投县928人,有40 845栋房屋全倒、41 373栋半倒。
项目名称:邵族安置社区
设计者:谢英俊
设计类别:住宅
项目地点:中国台湾 南投 鱼池乡
建筑面积:48㎡
建成时间:2000年
邵族为中国台湾现存人数最少的原住民族,有独特的风俗习惯、文化、语言,以及保存完好的祖灵信仰和丰富的岁时祭祀习俗,大多集中在日月潭畔——BARWBAW(日月村);1999年“9·21”中国台湾大地震造成80%的邵族人的房屋损毁。为了挽救这个少数民族,在中国台湾最高学术研究机关以及岛内外民间团体、NGO的捐助下,建立起这个安置社区,作为邵族民族延续、文化复兴的基地。安置社区的布局以仪式空间为主轴,结合自然环境的地势结构而形成,用以工代赈的方式,让族人集体参与社区的营建工作,一方面解决了生计问题,最重要的是通过集体的努力来重新凝聚部落的意识。“少一点建筑作为,多一点人,多一点祖灵”。所谓的少一点建筑,是指用最简易最质朴的建筑作为,让文化、社会、社区意涵渗透进来,也就是如何将建筑“虚化”,让人、神、自然,回复它主体的位置。


发表评论
最新评论
投稿



