中关村国防科技园
来源:匿名网友投稿 转载自:3A2 STUDIO 2015-04-17
项目名称:中关村国防科技园
项目地址:北京
建筑设计:叶依谦、段伟、薛军、从振、孙梦、杨曦、刘智
设计时间:2012
项目状态:在建
规划用地面积:62402㎡
总建筑面积:237995㎡
地上总建筑面积:164150㎡
容积率:3.5
建筑高度:80m
.jpg)
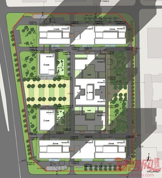
中关村国防科技园项目位于北京市海淀区北京理工大学中关村校区西北部,西临西三环北路,北至校园北路,东至校园西路,南临规划一路和研究生公寓5#、6#楼。
本项目规划总用地规模:62402㎡,总建设用地面积:46556㎡,总建筑面积:237995㎡。建设内容:地上为综合楼、研发楼及配套楼,地下为车库、人防、附属配套和设备用房。建筑控制高度:60-80米,建筑层数:地上3层至19层,地下3层。
在城市规划层面,设计延续了校园整体规划的轴线概念,与校园主轴呼应,加强了整个校园的整体性和结构性。整体建筑群以中间智能综合楼(A栋)为中心,其他四栋智能研发楼(B栋、C栋、D栋和E栋)分置两侧,并结合西侧配套楼(F栋和G栋)形成入口空间序列,体现中式院落对称的布局。南北两侧建筑横向布置,室内采光充足舒适,避免了高层之间的相互视线干扰。建筑整体围合成一较大庭院,庭院中配合立体绿化。在研发楼中结合多层次庭院空间的运用,在降低能耗的同时提升了整个园区的舒适度。
本项目在建筑设计全过程中,应用建筑信息模型设计(BIM协同设计技术),在以Revit为核心的BIM平台上全专业协同设计,提升了建筑设计的准确度,丰富了建筑全生命周期的信息资料,为建筑施工和后期维护提供了极大便利。
.jpg)
.jpg)
.jpg)
.jpg)
总平面图
.jpg)
首层平面图
.jpg)
剖面图
.jpg)
轴测图
.jpg)
立面图
.jpg)
立面图
.jpg)
立面图
发表评论
最新评论
投稿