葛丽泰·嘉宝:纽约公寓
来源:匿名网友投稿 2017-04-06
葛丽泰·嘉宝(Greta Garbo)是好莱坞的一代传奇,至今仍然是很多人心目的女神。现在,在嘉宝去世27年后,她留下的一套公寓房开始挂牌销售,要价595万美元(约合人民币4000万元),外加每月的维护费用9100美元。
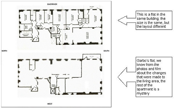
这套公寓房位于纽约东区的一栋建筑内,占据了第五楼整层,面积为2855平方英尺(约260平方米),嘉宝从1954年就住在这里,直到她去世。
嘉宝的家人没有对公寓房做太大变动,它的样子和嘉宝离世的时候差不太多。595万美元的价格不含家具。
公寓有三个卧室,三个洗手间,一个洗衣房,一个家庭办公室(曾经是更衣室),一部私人电梯。
1990年代曾对厨房进行过翻修。
嘉宝喜欢粉色和绿色。她的家人也保持了套房的原有色调。
图片来源:互联网
图片来源:互联网

图片来源:互联网

图片来源:互联网

图片来源:互联网

图片来源:互联网

图片来源:互联网

图片来源:互联网

图片来源:互联网

图片来源:互联网

图片来源:互联网

图片来源:互联网

图片来源:互联网

图片来源:互联网

图片来源:互联网

图片来源:互联网
发表评论
最新评论
投稿
