芬兰:赫尔辛基大学Kumpula学生宿舍
来源:网友微凉投稿 2019-09-18
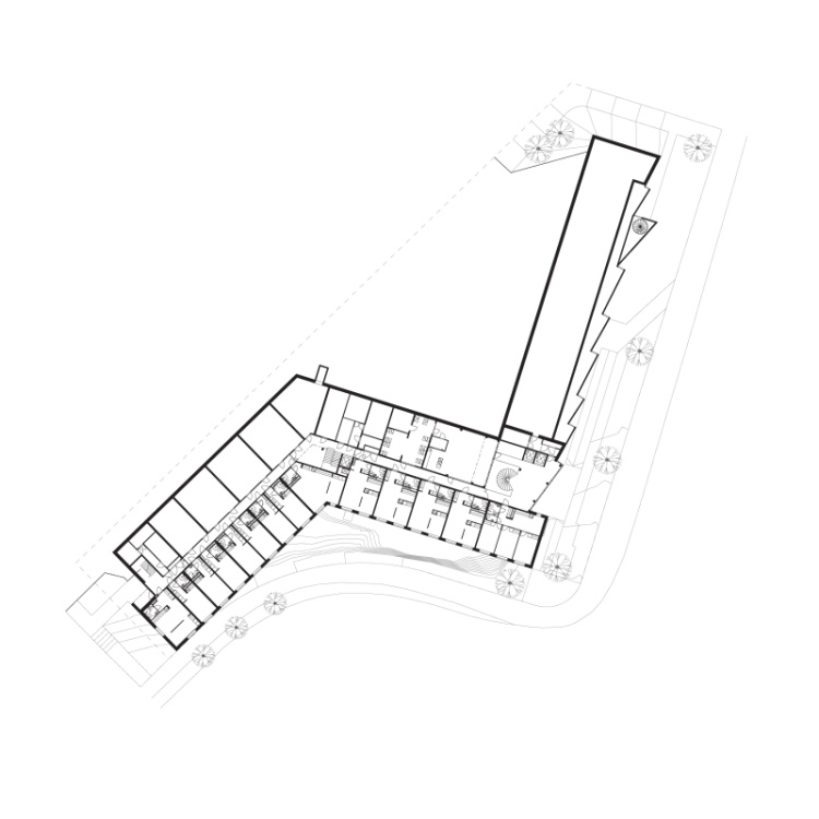
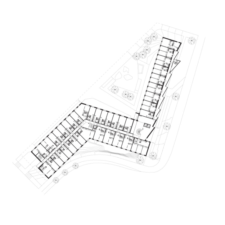
这是赫尔辛基大学Kumpula校区扩建项目。项目由PLAYA ARCHITECTS建筑事务所设计,包含公共空间和200间学生宿舍。场地狭小,位于繁忙的交通道路和教学楼之间的坡地上。
由于交通噪音的干扰,建筑选择只对庭院敞开。褶皱外立保护室内区域不被太阳光照影响,变得过热,同时也疏散了交通噪音,减少了对另一侧低层住宅区的影响。南立面进行了闭合和空白处理,北立面则相对开放和友好。
与其他暗淡的砖砌立面不同,较为抽象的北立面帮助新建住宅楼同周边大体量教学建筑建立了互动联系。为了凸显这一目的,其他立面才用了常规的开窗格局。
由于场地地势陡峭,临街的入口设在地下层,庭院入口设在二层。大部分公共空间设在一层,因此两个入口都能看到公共空间,因而鼓励学生社交并参与公共活动。公共区也同中空/螺旋楼梯相连,使不同楼层和入口相互连接。
建筑设计:PLAYA ARCHITECTS
摄影:TUOMAS UUSHEIMO
.jpg)
.jpg)
.jpg)
.jpg)
.jpg)
.jpg)
.jpg)
.jpg)
.jpg)
.jpg)
.jpg)
.jpg)
.jpg)
.jpg)
.jpg)
.jpg)
发表评论
最新评论
投稿



