日本南流山市幼儿园 KidsLabo | teamLab Architects
来源:网友Hevcdx投稿 2021-04-30
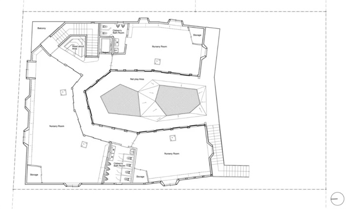
项目设置了两个花园,外花园完全脱离建筑,内花园半室内半室外设置。当在外花园玩耍时,内、外花园的边界实际上变得很模糊。当在内花园玩耍时,室内外空间仿佛融合在一起。内花园与室内房间相连,内部空间的视野因此变得开阔。在两个花园里孩子们一起玩耍共度时光,从事不同的活动,如果他们乐意的话随时可以在室内外穿梭,有时不同年龄段的孩子也可以结交成朋友。内花园成为一个模糊内外边界的空间。
操场上布满了凹凸不平的面层和柔软的网眼,平坦的区域很少,是一个需要全身协同运动的三维空间。信息社会需要的一种空间意识,这需要通过动手动脑来训练。基于发展交通的考虑,城市里到处都是平坦的路面。通过增加幼儿园中三维空间的数量,我们希望培养孩子们必要的空间意识,这在城市中是不易获得的。
.jpg)
.jpg)
.jpg)
.jpg)
.jpg)
.jpg)
.jpg)
.jpg)
.jpg)
.jpg)
.jpg)
.jpg)
.jpg)
发表评论
最新评论
投稿



