摩洛哥Stardust别墅 | MVRDV
其他来源:MVRDV投稿 2020-06-27
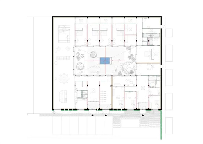
MVRDV完成了Stardust别墅项目设计。这是一座由商业建筑改造的私人住宅。受传统摩洛哥建筑启发,别墅内部生活空间围绕中央露台空间和庭院而设。
230平方米的室外庭院被设计成室外“客厅”,大量的自然光进入住宅,提供充足的通风设施。住宅面积约1000平方米,除了业主经营的小型医疗机构外,还为居住在其中的五口之家提供了充足的空间。
作为改造建筑,别墅在露台地板上融入了许多再生材料,包括重新使用的陶瓦。MVRDV的联合创始人Nathalie de Vries在一份声明中说,业主委托我们在买下建筑后进行建筑改造。我认为,作为非建筑师,业主理解建筑的潜力,是非常明智的。
此外,MVRDV合伙人Fokke Moerel及其团队实施了翻修设计。他说,我们保留了完整的外墙,以保证隐私,大幅减少了面积,以改善宜居性。770平方米的别墅仍然相当宽敞,但通过使用对称和安静的色彩,加上地中海特色,创造了阳光明媚的氛围。
.jpg)
.jpg)
.jpg)
.jpg)
.jpg)
.jpg)
.jpg)
发表评论
最新评论
投稿



