Jadric建筑事务所 | 首尔摄影艺术博物馆
来源:网友Puddin_Head投稿 2019-11-27
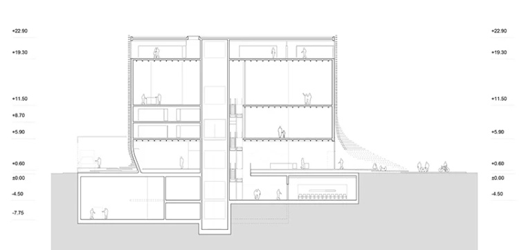
维也纳Jadric建筑事务所的方案赢得了首尔摄影艺术博物馆的竞赛优胜。方案得到了韩国本土1990 Uao事务所的合作,具有动感、扭曲的形态,旨在营造雕塑般的地标。为设计该博物馆,Jadric建筑事务所思索了摄影同建筑之间的关系。建筑物底部扭曲的形态象征着摄影快照,同时使建筑向公共空间敞开,成为新规划的“文化英里”的重要景点。临街立面踏步有效地将博物馆同人行道融合起来,吸引游客进入馆内,并为居民提供聚集和停留的宽敞公共空间。
本站申明:网友阅读本站内容,视为认同本站协议,协议详情请点击查看
标签:Jadric建筑事务所首尔摄影艺术博物馆
发表评论
最新评论
投稿