瑞典Etaget住宅 | Kjellander Sjoberg
来源:网友gzw668投稿 2020-03-23
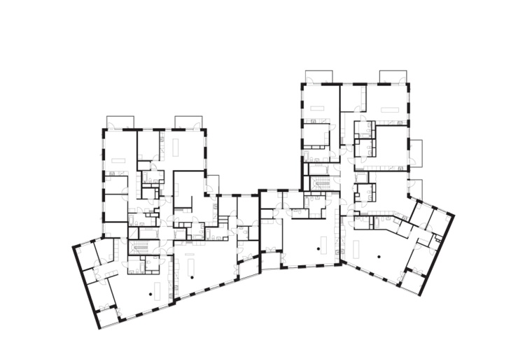
项目位于斯德哥尔摩市中心Kungsholmen西区,Etaget住宅项目获得2018年瑞典设计奖建筑竣工类别一等奖。Etaget具有强烈的城市特色,由Tobin和Ebab公司联合开发。包含办公楼和轻工业单元,附带商业和新型住宅,所在区域已发展成为多样化复杂社区。项目旨在将现有的环境与突出、进一步发展城市结构的建筑结合起来。建筑设计适应地区文脉,同时赋予其全新的品质。
如同可塑的迷你曼哈顿降落在城市街区,建立了充满活力的街景与住宅,吸引赋有表现力的城市活动。项目包含了城市的基本价值,提供多样性、广泛的功能。独特的建筑轮廓,不同的深度、外形和纹理,远观、街道近景皆宜。建筑结构以不同比例诠释了北欧和环境建筑的不同高度。
.jpg)
.jpg)
.jpg)
.jpg)
.jpg)
.jpg)
.jpg)
.jpg)
.jpg)
.jpg)
.jpg)
.jpg)
.jpg)
.jpg)
.jpg)
.jpg)
.jpg)
.jpg)
.jpg)
发表评论
最新评论
投稿



