泰国朱拉隆功医院护士宿舍 | Surreal Studios
来源:网友羊毛投稿 2021-05-18
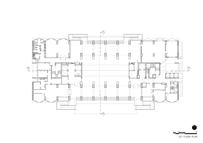
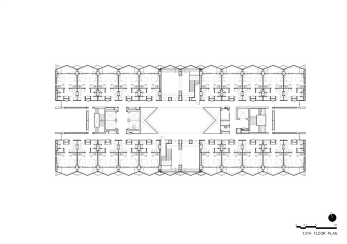
项目是泰国红十字会朱拉隆功医院护士的宿舍。该建筑共有26层,包含523间客房。大多数房间适合2个人使用,并设有各种设施,例如起居区、图书馆、餐厅、洗手间和多功能室。
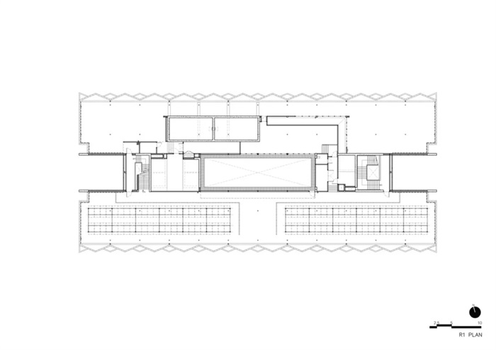
该项目的地点被现有的4个医生和护士宿舍楼所包围。场地周围有3座高层建筑,这是通行车辆的通道。场地中间有一栋低层建筑,被拆除后将被新宿舍取代。
设计团队决定设计新宿舍的布局,以便与三栋现有建筑物互动,从而创建一个封闭的庭院,与医院拥挤、繁忙的氛围隔开。建筑物的底楼是一个连接主干道和庭院的开放空间,隐喻地充当了通往这个宁静和平住宅区的门户。
.jpg)
.jpg)
.jpg)
.jpg)
.jpg)
.jpg)
.jpg)
.jpg)
.jpg)
.jpg)
.jpg)
.jpg)
本站申明:网友阅读本站内容,视为认同本站协议,协议详情请点击查看
标签:泰国建筑设计泰国红十字会朱拉隆功医院
发表评论
最新评论
投稿



